產品名稱:模塊化應急防控隔離房
產品類型:模塊化、裝配式、快速建筑
產品配置:手術室級醫用凈化板,醫用塑膠地板,空氣凈化器,消毒緩沖區,防控隔離區,洗手間。
產品簡述:
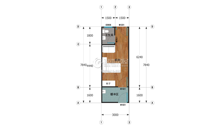
單獨模塊尺寸為7840*3000*2900(mm),模塊之間可以并排連接,也可堆疊,即可單獨用作急防控隔離房也可迅速搭建成為具有一定規模的醫療區。
產品特點:
1、模塊化結構設計,將醫院建設提速40%;
2、便于運輸,吊車裝車一部到位,裝配式結構快速搭建。
3.與傳統建筑相比,工廠化標準生產,大幅度加快制造速度,現場施工少,污染少,綠色環保。




